Расчёт лестницы

Лестница деревянная ЛЕС-02



Код товара: 1628

У лестницы  3 вариантов размера

Доставка в Березники: от 3-х дней

Условия доставки

Порода:

Подступенники:

69 670

Выберите поворот:

+

Характеристики:

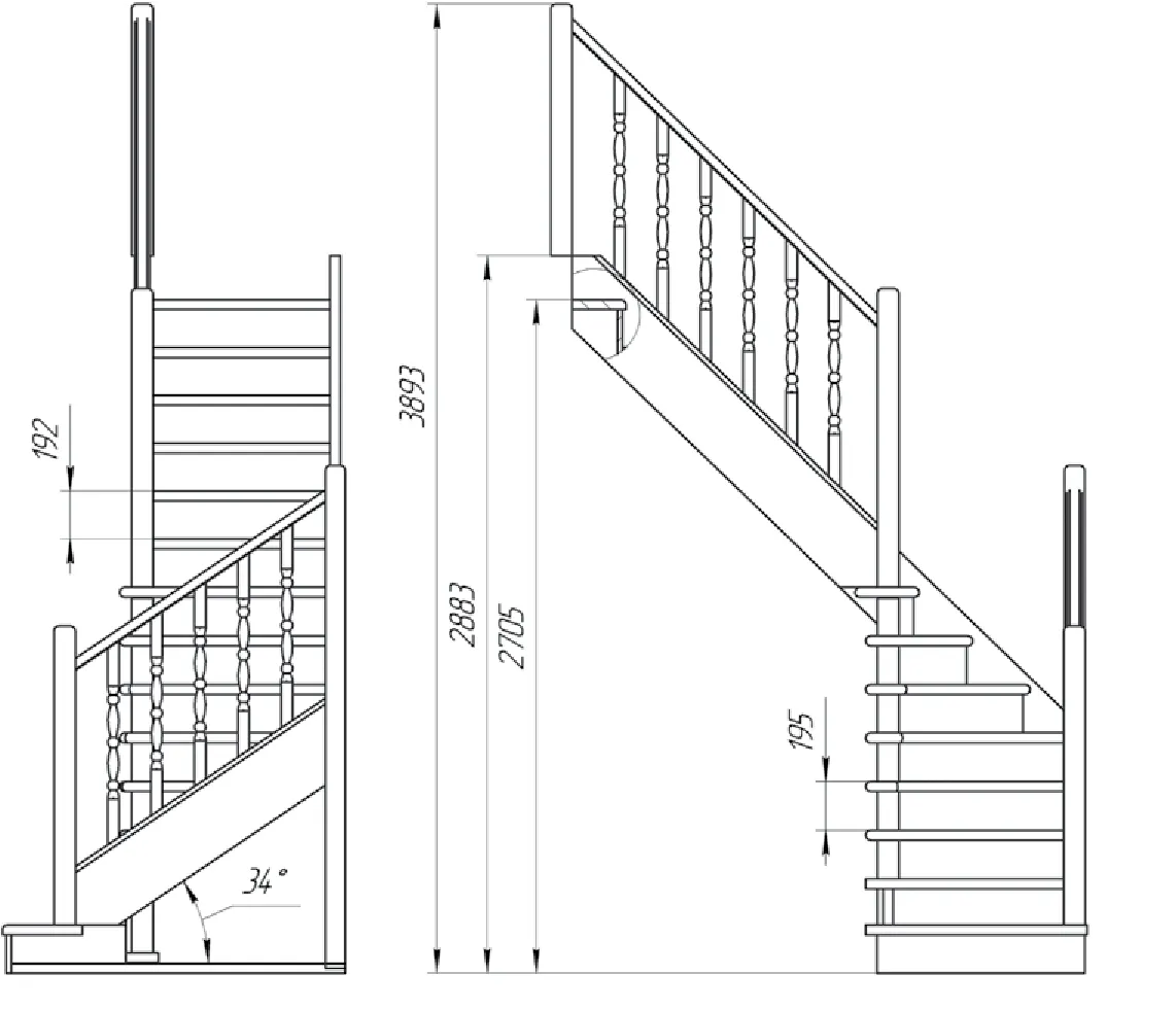
Высота лестницы 2705 - 2883 мм

Высота шага 195 / 192 мм

Количество ступеней 14

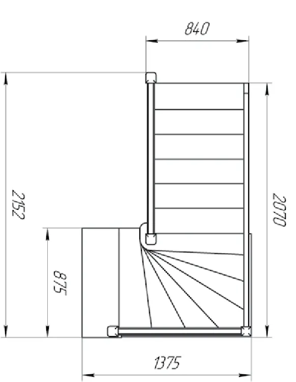
Ширина марша 875 / 840 мм

Толщина ступени 40 мм

Угол наклона 34 / 44 °

Габариты в плане 2152 × 1375 × 3893 мм

Кол-во подъемов 15

Форма лестницы Г-образная

Макс.нагрузка 200

Срок гарантии 1 г.

Материал Деревянные

Описание:

Увеличение высоты подъёма достигается добавлением подставки или ступеней снизу; уменьшение — подрезанием нижних деталей каркаса и изъятием нижней ступени; точная подгонка по высоте за счет размера верхнего шага.
Базовый комплект включает в себя деревянные элементы лестницы, подступенки и ограждения без какого-либо покрытия. Лестница поставляется в разобранном виде, упакованная в ящик. Монтаж производится силами двух человек, в соответствии с указаниями, приведёнными в паспорте лестницы.

Упаковка:

Масса брутто 180

Количество упаковок 1

Размеры наибольшей упаковки (мм) 3200 × 500 × 500

Общий объём 0,8

Покраска

от 30 030

Любой цвет, подбор по образцу. Надёжные средства. Качественное нанесение

подробнее
Стоимость монтажа

Монтаж:

от 28 870

Качественный монтаж опытными специалистами с учётом всех нюансов

Подробнее

Чертежи и схемы

Покраска деревянных элементов лестницы

от 30 030

Вы можете заказать у нас профессиональную покраску деревянных элементов лестницы.
Ниже представлена палитра наиболее популярных расцветок. Выкрасы выполнены на сосне.
На образцы нанесен 1 слой краски и 2 слоя воска.
Обратите внимание! Оттенок на экране может отличаться от ожидаемого, мы настоятельно рекомендуем посетить наш шоу-рум для ознакомления с образцами выкрасов.
Всю доступную палитру на разных породах дерева можно посмотреть, перейдя по этой ссылке

8510 Белый

8535 Сталь

8532 Орех

8533 Дуб копчёный

8539 Коричневый

8542 Тик тёмный

8543 Мербау

8544 Дуб бразильский

8546 Венге

8548 Дуб натуральный

Шоколад (Лайнос)

8536 Каппучино

8543 Сахара

Любой ваш цвет

Монтаж лестницы

Наша компания осуществляет профессиональный монтаж лестниц любого вида сложности. В нашем портфолио более 300 благополучно установленных интерьерных и наружных лестниц.

Монтаж за 1-2 дня

Бережная точная сборка лестницы

Увезём за собой мусор

Вернём оплату замера при монтаже нашей лестницы

от 28 870

Указана цена исключительно на монтаж лестницы, любые дополнительные работы, связанные с несовершенством стен, углов, устранением дополнительных препятствий при установке лестницы - изменят стоимость работ.
Так же, на стоимость влияет удалённость объекта. Точную стоимость установки лестницы мы можем объявить только после осмотра помещения специалистом и совершения необходимых замеров.

Видеоинструкция по монтажу лестницы ЛЕС-02

Дополнительно к этой лестнице

Похожие

Ранее вы смотрели